Store og brugbare lokaler i Brabrand
Edwin Rahrs Vej 54, 8220 Brabrand
Drømmer du om gode lager- og kontorlokaler i et dynamisk erhvervsområde lidt uden for Aarhus? Så tag et kig på vores ledige lejemål på Edwin Rahrs Vej.
- Store og regulære lagerlokaler
- Beliggende i velfungerende industrikvarter
- Mulighed for let af- og pålæsning af varer
- Gode befæstede udearealer
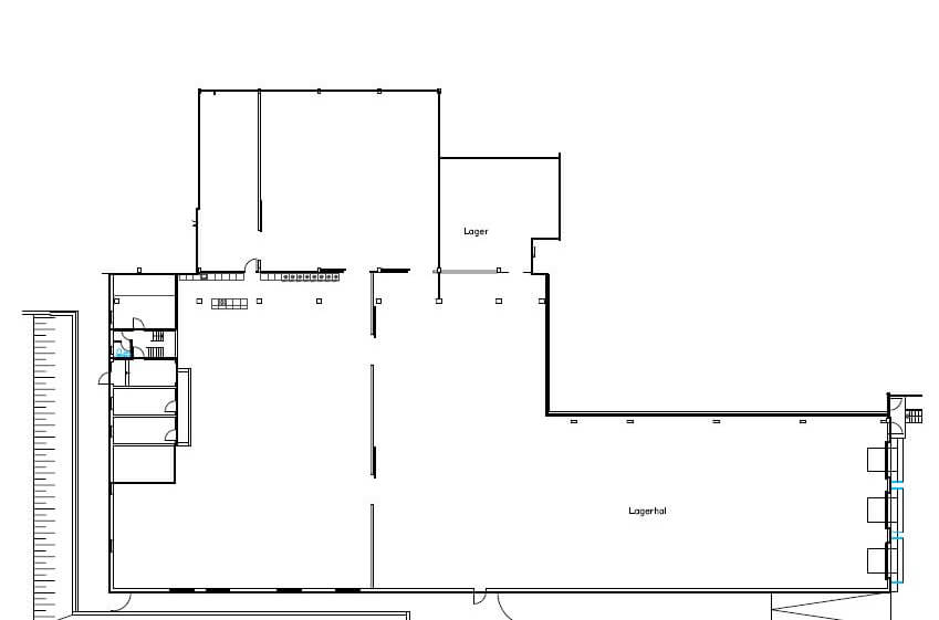
Lejemålets kvadratmeter fordeler sig på størstedels lager, men har desuden en række mindre lokaler, der med fordel kan benyttes som kontorrum. Lejemålet ville derfor egne sig godt til en virksomhed, som har brug for meget lagerplads. Lagerrummet er desuden forsynet med en port med rampetilkørsel, hvilket giver mulighed for en let og effektiv af- og pålæsning af varer. Derudover er der også gode befæstede udearealer knyttet til virksomheden. Der er tillige mulighed for at benytte en hyggelig fælles gårdhave.
Ejendommen husede oprindeligt brødfabrikken Schulstads administration og produktionslokaler, men har også tidligere været anvendt til dæklager. Senest har lejemålet været brugt som fotostudie og lager.
Med sin korte afstand til både den Østjyske motorvej og den ydre Ringvej, er lejemål let at nå i bil. Der er i øvrigt mulighed for parkering lige ved døren. Ejendommens placering i Brabrand er desuden ideelt til virksomheden, der gerne vil have centrale lokaler – uden at ligge lige midt i centrum.
- Aarhus
- Årlig leje: 480 kr/m2
- Areal: 1876 m2
- Sagsnr: 5-37-1000
Lignende lejemål
-
- Thomas Møller Kristensen
- Udlejningschef
- +45 2969 3926
- tmk@olavdelinde.dk
-
- Kasper Søby
- Udlejningskonsulent
- +45 2166 6938
- ks@olavdelinde.dk
-
- Michelle Plath
- Udlejningskonsulent
- +45 2750 2950
- mip@olavdelinde.dk
-
- Charlotte L. Clausen
- Chefkonsulent, udlejning
- +45 2969 3921
- clc@olavdelinde.dk
-
- Mads Roholt
- Udlejningskonsulent
- +45 2910 1290
- mr@olavdelinde.dk