Tidsbegrænset lejemål på Katrinebjerg
Møllevangs Allé 146, 8200 Aarhus N
Her er lejemålet til virksomheden, der mangler lidt mere plads at boltre sig på eller virksomheden, der søger et centralt lejemål til en god pris.
Har du butikslokaler i centrum, men mangler du et godt lagerlokale til at opbevare dine varer? Har du en relativ ny virksomhed, der godt kunne bruge en økonomisk blød start? Eller leder du blot efter et midlertidigt lejemål til en skarp pris?
- Centralt lejemål til en god kvadratmeterpris
- Mange anvendelsesmuligheder
- Tæt på store indfaldsveje
- TIDSBEGRÆNSET INDTIL 31.03.2022
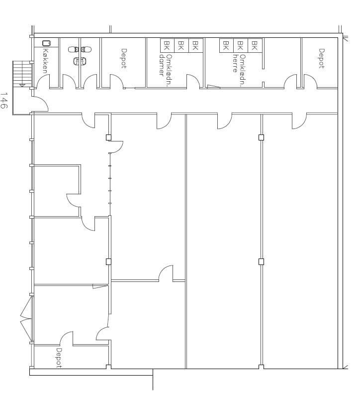
Lejemålet har flere anvendelsesmuligheder. Senest har det dog været benyttet som projektkontor, idet lejemålet har alt, hvad man skal bruge til dette formål såsom kontorrum, frokoststue, badefaciliteter og omklædningsrum. Lejemålet ville dog også med fordel kunne benyttes som lagerlokale, hvor man får et centralt placeret lagerlokale med god plads – og så oven i købet til en god pris.
Lejemålet består af 3 aflange lokaler, der tidligere har været benyttet til kantineområde, omklædning og mødelokale. Derudover består lejemålet af 5 opbevaringsrum/kontorrum, 3 depotrum, køkken, 2 omklædningsrum og 2 toiletter. Der er desuden mulighed for parkering i området.
Området
Lejemålet er en del af et større erhvervskompleks beliggende tæt ved Storcenter Nord og IT-Parken på Katrinebjerg. Den centrale placering mellem Hasle Ringvej og Vestre Ringgade, gør at lejemålet er let at nå i bil. Derudover der rig mulighed for at tage offentlig transport blot 450m fra lejemålet.
- Aarhus
- Årlig leje: 600 kr/m2
- Areal: 421 m2
- Sagsnr: 5-64-1015
- Energimærke: F
Lignende lejemål
-
- Thomas Møller Kristensen
- Udlejningschef
- +45 2969 3926
- tmk@olavdelinde.dk
-
- Kasper Søby
- Udlejningskonsulent
- +45 2166 6938
- ks@olavdelinde.dk
-
- Michelle Plath
- Udlejningskonsulent
- +45 2750 2950
- mip@olavdelinde.dk
-
- Charlotte L. Clausen
- Chefkonsulent, udlejning
- +45 2969 3921
- clc@olavdelinde.dk
-
- Mads Roholt
- Udlejningskonsulent
- +45 2910 1290
- mr@olavdelinde.dk