Momsfrit lejemål på Katrinebjerg
Møllevangs Allé 148A, 8200 Aarhus N
Står du og mangler et lejemål til klub- eller foreningsformål? Så har vi et momsfrit lejemål på Møllevangs Allé!
- Stort forsamlingslokale
- Velbeliggende i dynamisk erhvervsområde på Katrinebjerg
- Lejemålet er tidsbegrænset indtil 31.03.2022
- Lejemålet er momsfrit
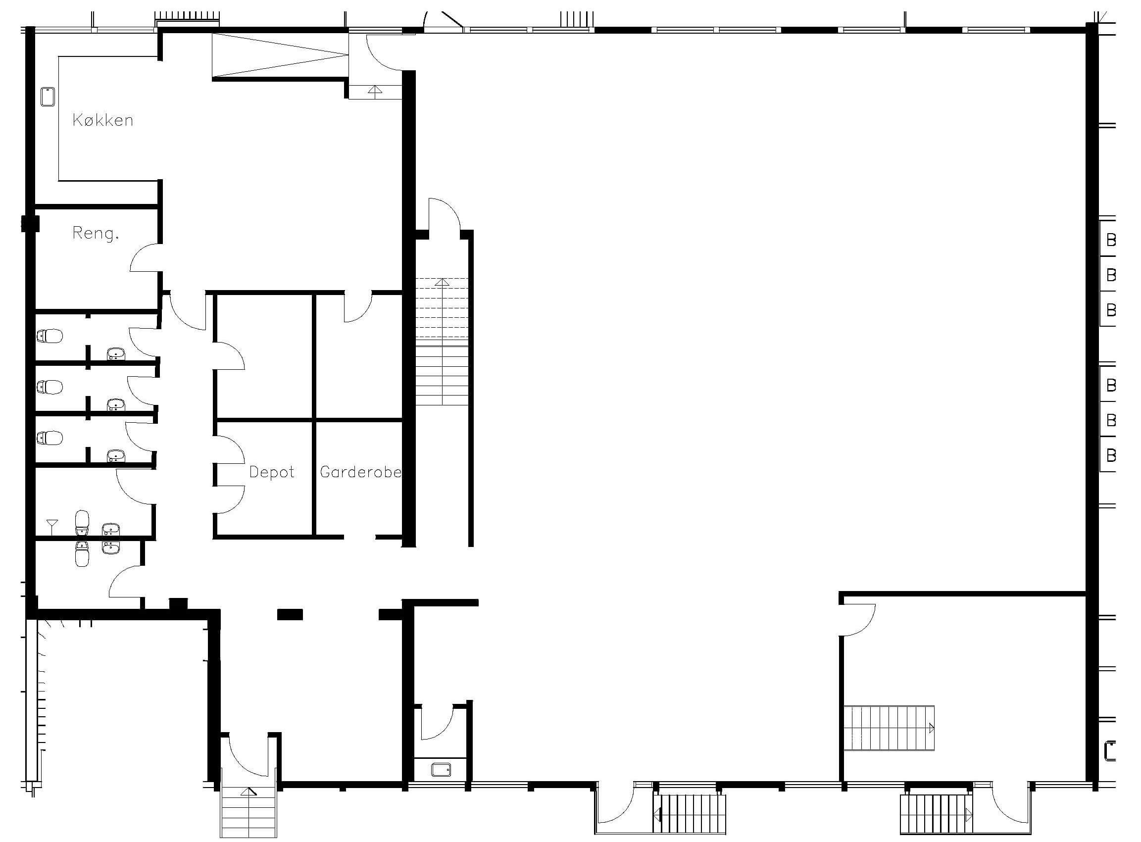
Dette lejemål egner sig perfekt til alskens aktiviteter, hvad end det er som fritidsklub, som dansestudie eller som forening. Lejemålets storrum har tidligere været anvendt til både fællesaktiviteter og underholdning.
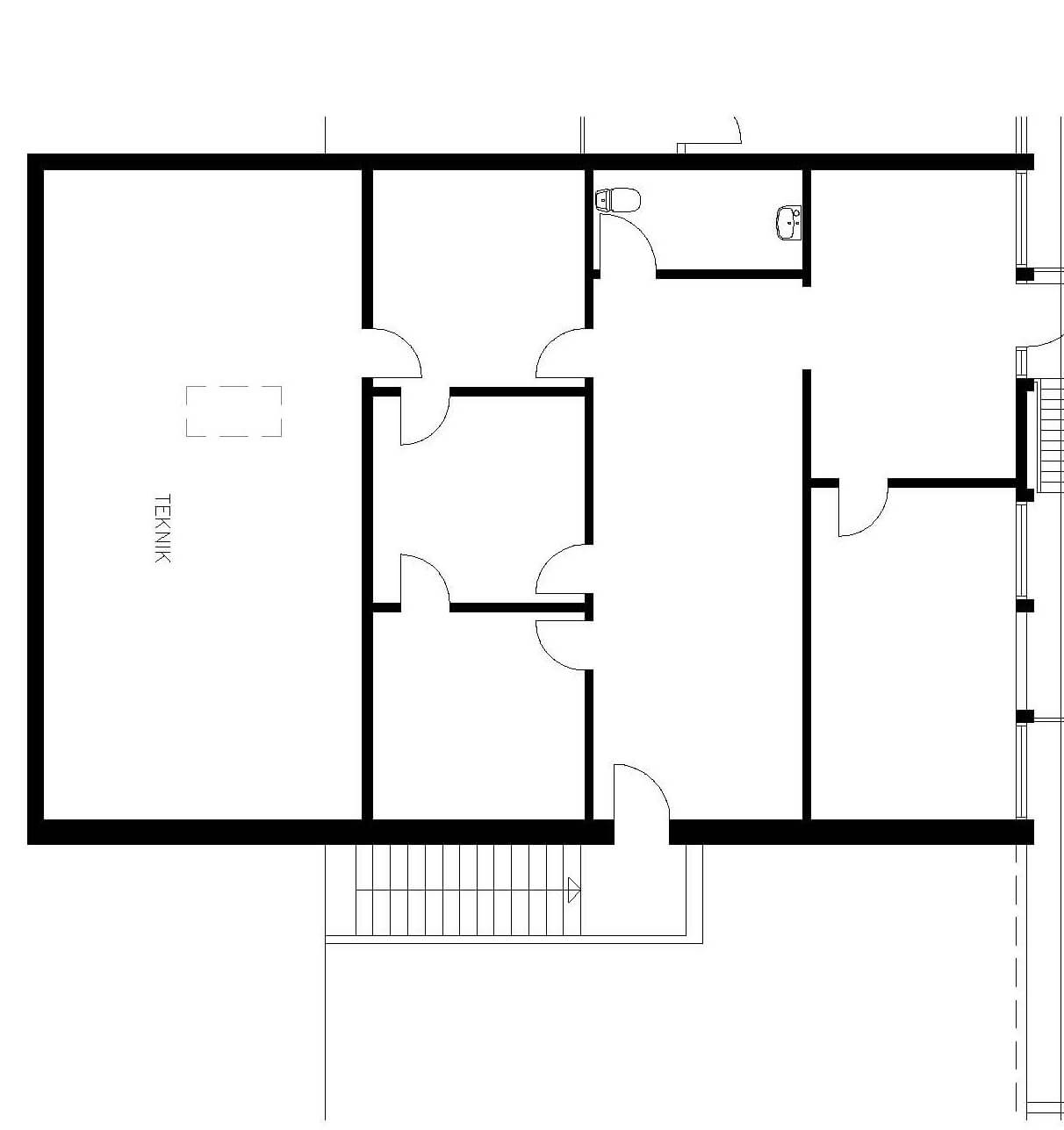
Lejemålet består af både stueetagen og 1. salen. Stueetagen består af et særdeles godt storrum eller forsamlingslokale, et velfungerende køkken, møderum eller kontorer, receptionsområde, depoter samt 5 toiletter, hvoraf 2 er handicapvenlige. Lejemålets 1. sal består af flere gode møderum eller kontorer, toiletter, depoter.
Lejemålet er en del af et større erhvervskompleks beliggende tæt ved Storcenter Nord og IT-Parken på Katrinebjerg. Den centrale placering mellem Hasle Ringvej og Vestre Ringgade, gør at lejemålet er let at nå i bil. Derudover der rig mulighed for at tage offentlig transport blot 350m fra lejemålet.
Lejemålet er tidsbegrænset til 31.03.2022
- Aarhus
- Årlig leje: 551 kr/m2
- Areal: 676 m2
- Sagsnr: 5-64-1016
- Energimærke: F
Lignende lejemål
-
- Thomas Møller Kristensen
- Udlejningschef
- +45 2969 3926
- tmk@olavdelinde.dk
-
- Kasper Søby
- Udlejningskonsulent
- +45 2166 6938
- ks@olavdelinde.dk
-
- Michelle Plath
- Udlejningskonsulent
- +45 2750 2950
- mip@olavdelinde.dk
-
- Charlotte L. Clausen
- Chefkonsulent, udlejning
- +45 2969 3921
- clc@olavdelinde.dk
-
- Mads Roholt
- Udlejningskonsulent
- +45 2910 1290
- mr@olavdelinde.dk