Kontor i hjertet af Odense

Edisonsvej 7, 5000 Odense C

  • Kontor

Kontorlokaler i det særdeles attraktive område i Thrige-Firkanten udlejes

- Unikke erhvervslokaler i Thrige-Firkanten

- Beliggende tæt på Odense Banegård

- Gode parkeringsmuligheder

- Årlig leje: 1.050 ,- kr. pr. m²

 

Lejemålet er indrettet i den ”klassiske rå Olav de Linde stil” med mange fine detaljer og respekt for ejendommens historie og arkitektur.

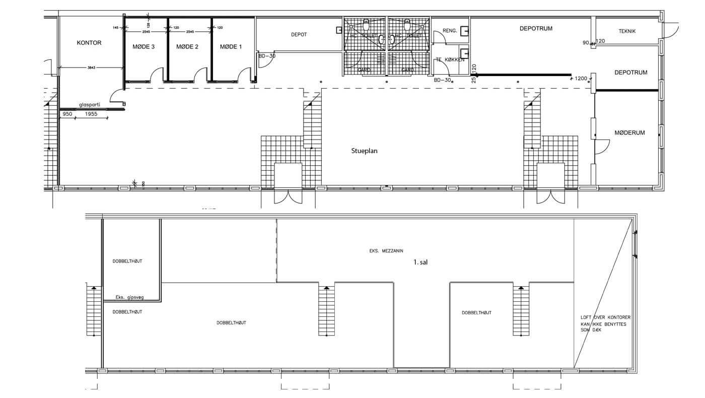
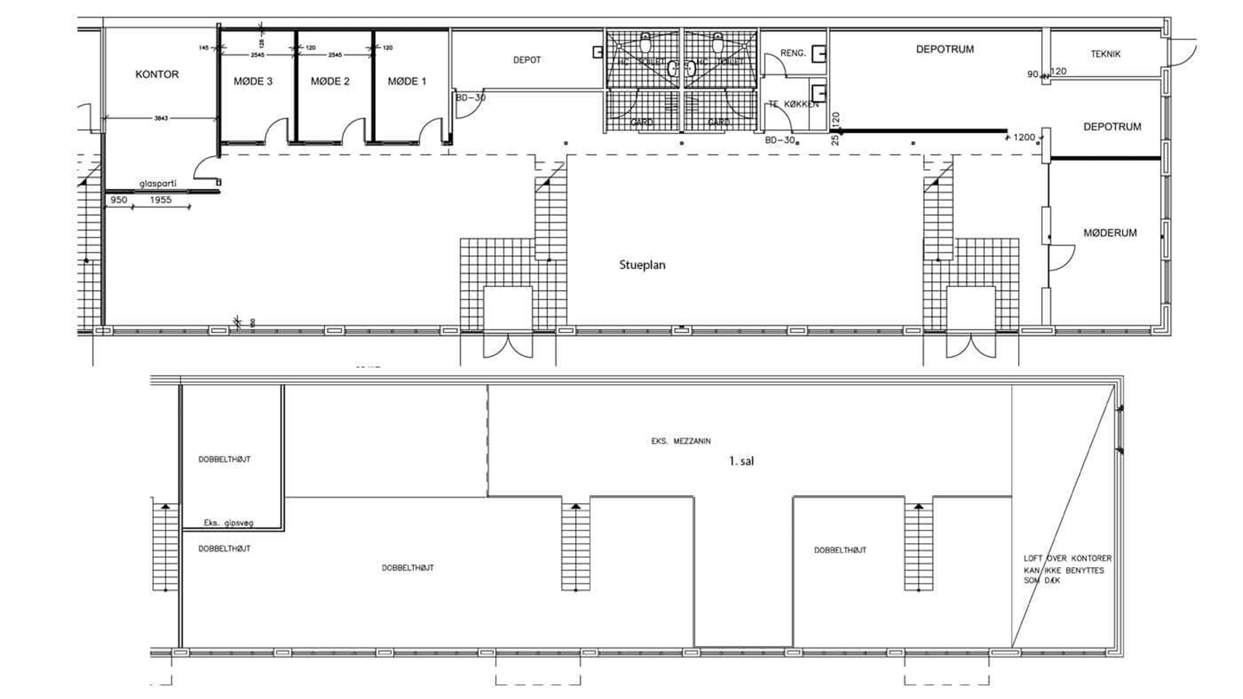
Lejemålet på de 534 m² har egen indgang via. glas entre, hvor man går direkte ind i et indbydende storrumskontor, derfra er der adgang til mødelokaler/cellekontorer, mindre tekøkken, samt toiletter. 1. salen på indskudt dæk, fungerer som storrumskontor med højt til loftet, udkig til stueplan og med masser lækkert lysindfald.

 

Thrige-firkanten:

Thrige-firkanten er et attraktivt erhvervsområde i hjertet af Odense. Thrige, der tidligere huset Thrige-Titans produktions- og administrationsbygninger og Bazar Fyn, huser i dag en lang række virksomheder, såvel private som offentlige. 

 

 

Hent prospekt

Når du bestiller prospekt, godkender du, at vi gemmer de ovenfor indtastede personoplysninger, og at vi må kontakte dig telefonisk eller via e-mail vedrørende ejendommen.

  • Odense
  • Årlig leje: 1.050 kr/m2
  • Areal: 532 m2
  • Sagsnr: 5-80-5005
  • ENERGI@1Energimærke: D